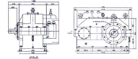
상세설명
GEAR SPECIFICATION
|
|||||
DRIVEN MOTOR
|
225 Kw x 1750 RPM | ||||
OUTPUT SHAFT SPEED
|
105 RPM | ||||
REDUCTION RATIO
|
1/10.4318 | ||||
LUBRICANT
|
ISO VG 220.50 LITER | ||||
WEIGHT
|
3200 Kg | ||||
NAME
|
STEP
|
1 STEP GEAR
|
2 STEP GEAR
|
||
PART
|
PINION
|
GEAR
|
PINION
|
GEAR
|
|
MODULE
|
7
|
10
|
|||
NO DF TEETH
|
22
|
81
|
24
|
68
|
|
RATIO
|
1/3.68
|
1/2.834
|
|||
RPESSURE ANGLE
|
20 °
|
20 °
|
|||
HELIX ANGLE
|
(R) 15 ° (L)
|
(L) 15 ° (R)
|
|||
STANDARD P.C.D
|
159.43
|
587
|
248.466
|
703.998
|
|
WIDTH OF TEETH
|
170
|
160
|
190
|
180
|
|
HARDNESS OF TEETH
|
HRc60±2
|
HRc58±2
|
HRc60±2
|
HRc58±2
|
|
MATERIAL
|
SNCM21
|
SNCM21
|
SNCM21
|
SNCM21
|
|
HEAT TREATMENT
|
CARBURIZING
|
CARBURIZING
|
|||
GRADE
|
JIS 2
|
JIS 2
|